飞易通AoA套件K3介绍及RTLS系统应用部署指导
应用简介 - AoA-K3
AOA-K3 | Bluetooth Angle of Arrival (AoA) K3 DEMO Kit for Real-Time Locating System (RTLS)
飞易通AoA套件 - AoA-K3

套件包含

Bluetooth AoA Gateway: |
FSC-BP203 |
Bluetooth Version: |
Bluetooth Low Energy (BLE ) 5.4 |
Installtion method: |
Ceiling/side-hanging |
Power supply: |
POE/DC |
Maximum installation height: |
10m |
Coverage: |
The coverage radius is 2 times of the installation height |
Accuracy: |
0.1~1m |
Bluetooth AoA Tags: |
FSC-BP10x Series |
Bluetooth Version: |
Bluetooth Low Energy (BLE ) 5.1/5.4 |
Key: |
Could be SOS |
Gravity Sensor: |
YES |
LED Light: |
YES |
Customizable: |
YES |
Configurable: |
YES |
工作场景
AoA网关安装在固定高度的高处,它可以识别工作范围内AoA标签的位置。

如何运行
定位信标广播AoA信号。
定位AoA网关收到AoA信号后,通过网线将位置信息上报给定位引擎。
定位引擎将定位结果上报给定位服务平台。
定位服务平台可以根据定位结果展示给终端用户。

RTLS设备安装部署指导
安装前准备
在开始安装RTLS系统之前,请确保已经完成了以下准备工作:
场地测量:对安装场地的尺寸进行测量,确保场地的平面图准确无误。
网络环境:确保场地内有可用的局域网,并且网络连接稳定。
样品套件:准备一套RTLS的样品套件,包括定位信标和基站等设备。
套件安装方法
当我们已经完成CCS软件配置时(详情请参考《AOA软件操作使用说明》),需要进行安装时,需注意安装位置和软件配置时尽量不靠有遮挡的地方,且CCS软件有覆盖效果仿真可以查看基站覆盖区域,(绿色为优秀,精度为0.1-0.2m,黄色为中等,精度在0.3-0.5m,红色则为精度很差)。
a) 基站介绍
基站分为两部分,一个为基站本体,一个为基站底座。安装时需先安装底座,水平放置于天花板,用螺丝安装即可。

(基站本体)

(基站底座)
b) 连接基站和供电
基站带有四个端口,基站支持12v有线供电和POE供电(需POE供电交换机),还带有复位按键,网线需接在POE IN口上,如下图:

如若搜索不到基站,请按此进行 复位 操作:基站有四个端口,其中有个复位按键,长按复位按键5s重置。
c) 基站摆放说明
基站请尽量保持水平放置,CCS软件配置图上有显示灯,安装时请按配置文件进行安装,参考如下:
箭头所指的即是基站的灯,CCS软件配置和现场安装都保持一个方向

服务器搭建
根据软件系统要求,准备符合要求的服务器电脑及客户端电脑。
1 |
操作系统及版本要求: |
Win10/Windows Server 2016/Ubuntu 16.04/Centos 7或以上 |
2 |
CPU: |
可以在 CCS 中借助 服务器性能计算器 进行计算,
输入基站数量、信标数量、信标频率,可计算出对应服务器 CPU 配置要求。
如12核3.8GHz或 16核2.8GHz。
|
3 |
网卡: |
需要配置千兆网卡 |
4 |
内存: |
根据CPU 配置进行对应配置 |
5 |
硬盘: |
根据业务平台需要存储数据容量进行对应配置 |
6 |
网络设备安装要求: |
如果服务器的网口需求已经配置到千兆级别,
那么对应的POE交换机、路由器和网线也应该配置到千兆级别。
|

CSS - 服务器性能计算器
基站状态确认
检查基站指示灯的状态,确保基站正常工作:
如果指示灯未亮:检查网线是否连通和电源是否插好。
如果红色闪烁:检查网线是否正常和IP地址是否被占用。
如果绿色慢闪:说明基站已有IP地址,如CCS仍未扫描到,请检查网络连通性和丢包问题。
基站安装配置确认
根据实际情况,现场工程师需要逐一确认每个基站的安装高度、x、y、z坐标(x、y坐标可参照标注图进行确认)。 若发现基站位置与实际安装位置有差别,请测量基站实际标注,再到CCS中修改为实际位置。
同时确认基站方向是否与工程配置一致,如发现不一致,请在CCS中按照实际方向进行修改。在确认基站的时候也需要关注基站的安装要求是否满足预计标准。
基站安装注意事项
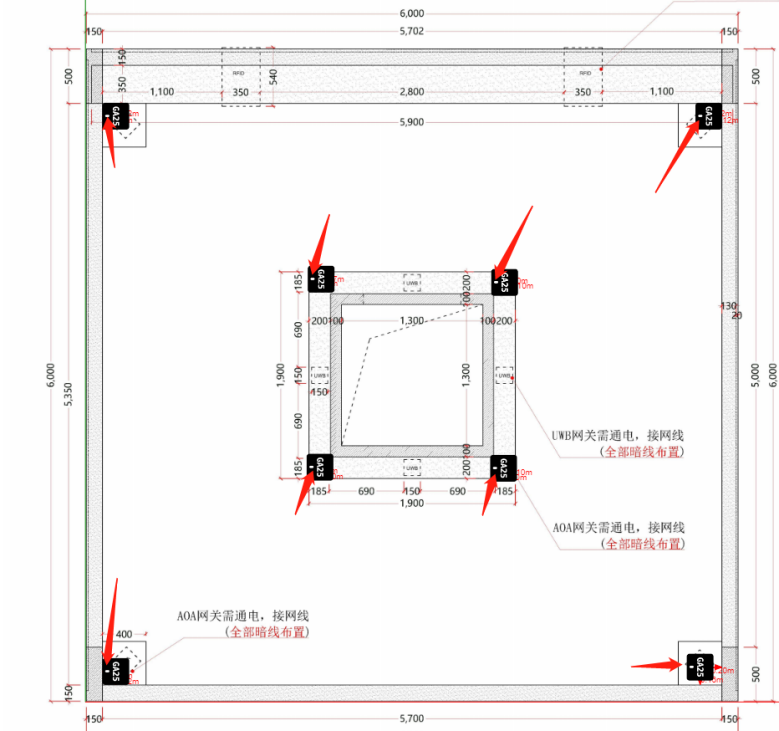
安装高度:基站应尽可能安装在3米以上到10米以下的高度。避免在安装位置下方有遮挡物,如吊灯、金属物品等。
安装方向:所有基站应按照水平吸顶安装方式,正面面向地板。水平角度偏差不超过3度。同时,所有基站的安装方向应尽量保持一致,以基站网口作为参考方向,方便调试和校准。
避免障碍物:基站的安装位置应避免有障碍物遮挡干扰,如墙角、墙壁、金属横梁等对基站天线有较大影响的障碍物。基站前后左右及下方1米内应无任何遮挡物,以避免影响定位效果。
信道选择:基站默认使用2481私有信道,而样品标签目前使用2402蓝牙信道。基站和标签的信道均可在软件内进行修改。然而,建议使用2481私有信道,以避免被蓝牙信道干扰。
AOA软件操作使用说明 - CCS
获取并激活License
CCS(Core Config Station)整套软件需要飞易通授权License激活,才可使用;
如果未激活license ,可在CLE终端(Core Location Engine Terminal)输入 cle service start 命令,获取机器码 machine ID,或者在Chrome浏览器打开 127.0.0.1:33333 即可查看机器码,将机器码发给飞易通获取License。


项目信息配置
a) 环境变量配置
打开CSS(Core Config Station), 新建项目 后,依次进入 项目信息 - 环境变量 :工程默认的参数比较大,下图是验证较多次的配置参数,可以直接套用,也可以自行调整。

CSS(Core Config Station)

b) 算法信息配置
在 项目信息 - 算法信息 - 配置 栏,如下图,椭圆区域参数,请根据实际情况进行调整,可以自行进行修改;

c) 地图配置- 加载地图
在 项目信息 - 地图信息 - 地图配置 栏,点击 更换地图 ,添加所需的地图进来,比例一定要一致。

d) 地图配置- 地图校准
在更换地图后需要进行 地图校准 :
点击 校准地图(两点) ,选择 两点 ,下图标注了要选择的两点,弹出 校准地图 窗口 实际尺寸:**输入实际的距离 , **勾选锁定标注长度 。


如下图,鼠标移至箭头处,可查看坐标,此时可确定地图数据无误,地图大小为6m x 6m

e) 基站配置
在 基站配置 - 规划 栏,选择 产品型号 和 基站命名 ,基站命名建议使用 基站的mac地址 , 基站坐标 按实际填写,单位m。

在 基站配置 - 部署 栏, 基站MAC 项写入实际地图位置中摆放基站的mac地址, 需跟实际地图中摆放的位置一致,不要写错了另一个位置的基站mac地址,会导致基站运行后,信标位置不准确 。

f) 仿真测试
待以上全部设置完毕后,在 项目信息 - 地图信息 - 选择 新创建的地图 - 覆盖效果仿真 栏,选择 开启仿真,可以进行仿真,查看摆放后的覆盖范围。

设备摆放
在地图上,每个基站会带有一个点,这个点就是基站上的灯,所以实际摆放时,需要根据地图的变化来进行变化。
按照所提供的图所示,基站上的点全部朝着D门,故当我们面对着A门站立时,基站的灯全部朝向左边摆放。

设备列表查看
a) 已入网设备查看
在 设备管理 - 已入网设备 栏,可以查看局域网内识别到的基站和信标;

如果无数据,需要在 工具栏,依次点击 网络 - 网卡 - 勾选中 WLAN,再重新右键刷新即可。

b) 设备扫描信道配置
可更改使用的通道,现在默认都是2481的通道,可给基站和信标右键配置更改为蓝牙通道2402,默认使用2481通道。
运行AOA
a) 启动项目
在Chrom浏览器地址栏输入: 127.0.0.1:33333 ,进入 定位引擎, 控制面板 - 设置 - 服务 界面, 选择 保存的.cpa文件项目,点击 启动 即可。

b) 实时轨迹查看
AoA项目启动后,点击 实时定位 即可查看轨迹,点击 信标**或 **基站 可以查看信标或基站的数据。

CLE DashBoard 操作说明
CLE DashBoard 进入
CLE启动引擎算法后, 您可以使用本机的Chrome浏览器打开 http://localhost:44444来访问 CLE Dashboard。同样,在局域网中,您也可以使用其他PC打开CLE Dashboard。
例如,如果启动 CLE引擎的服务器/PC的IP地址是192.168.0.254,您可以使用Chrome浏览器在局域网内的其他PC上打开http://192.168.0.254:44444。这样,您可以方便地在局域网中访问CEL Dashboard。

标签显示大小调节
进入 CLE Dashboard 界面后,在页面右上角: a. 选择对应的地图 b. 拖动滑块可调节标签显示大小

标签和基站状态
进入CLE Dashboard界面后,在页面左侧:点击小眼睛图标可切换对应标签/基站设备显示状态


FAQ
输入 http://localhost:44444/ 浏览器显示无法访问此网站?
请检查 cle 算法引擎是否启动定位服务,cle service start xxx.cpa
请检查 cle 服务启动是否正常:
图A为:正常启动

图C为:找不到基站。您需要打开CCS软件检查是否扫描到基站,基站是否填写了对应的mac地址。

CLE Dashboard页面地图无法显示
请使用 Chrome 浏览器,使用其他浏览器会导致异常。
请检查 Chrome 版本,过低版本会有显示不正常的问题,请检查更新,如无法更新请重新下载安装新版本
CLE Dashboard 页面无信标/某个信标未发现
如果在 CCS 导入的地图为 dae/zip 格式的三维地图,请检查建模时三维地图是否 带有高度信息,如带有高度信息,请压平 z 轴或者删除掉高度。
请检查信标是否开机,轻按一次是否有指示灯亮,灯亮为开机,若未开机请长按开机。
请停掉cle引擎服务:cle service stop 使用 CCS 打开并扫描信标,查看信标是否在线,且信道是否与基站同一信道,如若信道不同,请将信标改为和基站同一信道。
RTLS上位机软件使用说明 - Feasycom RTLS
上位机使用前须知
在通过AoA软件CCS(Core Config Station)完成AoA地图环境搭建,并启动服务后,方可使用AOA RTLS上位机。

上位机界面显示
在RTLS上位机软件界面默认显示: 基站列表,和 标签列表 。右侧 参数设置 工具栏,包括系统配置、底图布置、栅格设置。正中间 定位界面 显示,可看到实际场地图和定位点。

如需要只显示 定位界面 ,在 参数设置 - 系统配置 功能栏, 取消勾选 显示标签表、 显示基站表 、并关闭 参数设置栏 即可; 若要重新开启,则界面左上角的 显示 - 勾选中 参数设置 即可。

功能介绍
a) 底图设置
在 参数设置 - 底图布置 功能栏,点击 打开 ,打开场地布局图片。根据图片像素调整图片缩放及偏移,使定位点准确显示在地图上。


b) 定位
在 参数设置 - 系统配置 功能栏,在 网关IP 对应填写已装有配套AoA软件(CSS)电脑的IPv4地址,然后点击 修改 即可; 根据使用电脑的ip地址段0或100,选择网址填入到RTLS的网关IP处。如图:


c) 轨迹
RTLS上位机可开启轨迹和修改轨迹长度;
在 参数设置 - 系统配置 功能栏,勾选中 显示标签轨迹,并填入数字设置 轨迹长度 , 上限为1200 。如图:

d) 防抖
RTLS上位机支持防抖调整参数(默认0.05m);
在 参数设置 - 系统配置 - 防抖阈值 项,可调整定位点的飘动,数值越大,波动越小。

附录
下载 PDF版本
飞易通AoA套件K3介绍及RTLS系统应用部署指导