Feasycom Bluetooth AoA Demo Kit and RTLS Deployment Guide

[中文]

Introduction

AOA Demo Kit | Bluetooth Angle of Arrival (AoA) DEMO Kit for Real-Time Locating System (RTLS)

Feasycom AOA Demo kit is a high accuracy RTLS (Real-Time Locating System) Evaluation kit based on Bluetooth AOA technology. It contains 1 AoA gateway and 6 tags. The gateway supports POE/DC power supply, making it easy to deploy and test. The purpose of Demo kit is to help customers quickly complete prototype verification and accelerate project implementation progress.

Feasycom AoA Demo Kit

_images/AoA_K3_DEMO_Kit_1.png

DEMO Kit Includes:

_images/AoA_K3_DEMO_Kit_2.png
AOA Gateway

Bluetooth AoA Gateway:

FSC-BP203

Bluetooth Version :

Bluetooth Low Energy (BLE) 5.4

Installation Method :

Ceiling/side-hanging

Power Supply :

POE/DC

Maximum Installation Height:

10m

Coverage :

The coverage radius is 2 times of the installation height

Accuracy :

0.1~1m

AOA Tags

Bluetooth AoA Tags:

FSC-BP10x Series

Bluetooth Version :

Bluetooth Low Energy (BLE) 5.1/5.4

Key :

Could be SOS

Gravity Sensor :

YES

LED Light :

YES

Customizable :

YES

Configurable :

YES

RTLS Solution & AOA-K3 Video Show

RTLS Solution & AOA-K3 Video Show.mp4

AOA-K3 Product Manual

AOA-K3_Product_Manual.pdf

Application Scenarios

The AoA Gateway is mounted at a fixed height, it can accurately detect the location of AoA tags within its working range.

_images/operating_principle.png

How it works

  1. Positioning beacons broadcast AoA signals.

  2. After receiving the AoA signal, the positioning AoA gateway reports the position information to the positioning engine through the network cable.

  3. The positioning engine reports the positioning result to the positioning service platform.

  4. The positioning service platform can be displayed to the end users according to the positioning results.

_images/how_it_works_200dpi.png

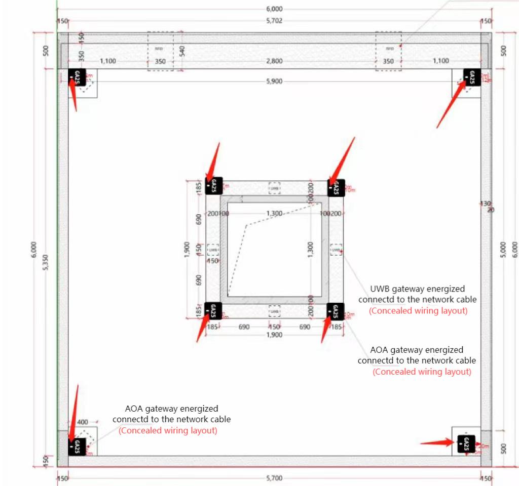
RTLS equipment installation and deployment guidance

Preparation before Installation

Before installing the RTLS system, please make sure the following preparations have been completed :

  1. Site Measurement: Measure the dimensions of the installation site to ensure that the site plan is accurate.

  2. Network environment: Verify that there is an available LAN in the venue and that the network connection is stable.

  3. Sample kit: Prepare a RTLS sample kit, including equipment such as positioning beacons and base stations.

Sample Kit Installation Method

After completing the CCS software configuration (for details, please refer to the AOA Software Operation and Use Instructions), when installation is required, it’s important to pay attention to the installation location and software configuration as far as possible away from obstructions, and the CCS software includes a coverage effect simulation to view the base station coverage area.

  • Green : Excellent accuracy (0.1-0.2m)

  • Yellow : Medium accuracy (0.3-0.5m)

  • Red : Poor accuracy

a) Gateway Introduction

The gateway is divided to two parts, one is the main body part and the other is base part. When installing the gateway, user needs to install the base first, place it horizontally on the ceiling with screws.

_images/gateway_1.png

main body part

_images/gateway_2.png

base part

b) Gateway Connection and Power Supply

The gateway has four ports, which supports 12v wired power supply and POE power supply (requires POE-powered switch), the network cable needs to be connected to the POE IN port, as shown below:

_images/gateway_power.png

If the gateway cannot be searched, please perform RESET operation:

The base station has four ports, one of which has a reset button. Press and hold the reset button for 5 seconds to reset.

c) Gateway Placement Instructions

Please keep the base station horizontally placed, the CCS software configuration diagram indicates the location of the display lamps. When installing, please install it according to the configuration file. The reference is as follows:

Note

The arrow points to the lights of the base station, both CCS software configuration and filed installation maintain the same direction.

_images/gateway_baifang.png

Server Construction

According to the software system requirements, please prepare server computers and client computers that meet the requirements.

Server and Network Requirements

1

Server operating system and version requirements :

Win10/Windows Server 2016/Ubuntu 16.04/Centos 7 or above

2

CPU Configuration :

This can be calculated in CCS with the help of the Server Performance Calculator.
Enter the number of base stations, beacons, and the beacon frequency as shown below to calculate the corresponding server CPU configuration requirements.
Eg, 12-core 3.8GHz or 16-core 2.8GHz.

3

Network Card :

Gigabit network card needs to be configured.

Memory :

Configure accordingly according to CPU configuration.

5

Hard Disk :

Configured according to the data storage capacity of the business platform.

6

Network equipment installation requirements:

If the server’s network port requirements have been configured to the Gigabit level,
then the corresponding POE switches, routers and network cables should also be configured to the Gigabit level.
_images/services_cpu_config.png

CSS - Server Performance Calculator

Gateway Status Confirmation

Check the status of the base station indicator to ensure that the base station is working properly:

  1. If the indicator does not light up: Check whether the network cable is connected and the power supply is plugged in properly.

  2. If red flashes: Check whether the network cable is normal and whether the IP address is occupied.

  3. If the green flashes slowly: It means the base station already has an IP address. If CCS has not yet scanned it, please check the network connectivity and packet loss issues.

Gateway Installation and Configuration Confirmation

  1. According to the actual situation, field engineers need to confirm the installation height, x, y, z coordinates of each base station one by one (x, y coordinates can be confirmed by referring to the labeling diagram). If you find that there is a difference between the BTS position and the actual installation position, please measure the actual labeling of the BTS and then modify it to the actual position in CCS.

  2. At the same time, confirm whether the direction of the base station is consistent with the project configuration. If any inconsistency is found, please modify it in CCS according to the actual direction. When confirming the base station, user also needs to pay attention to whether the installation requirements of the base station meet the expected standards.

Base station installation precautions

  1. Installation height: The base station should be installed at a height of more than 3 meters to less than 10 meters as far as possible. Avoid obstructions below the installation location, such as chandeliers, metal objects, etc.

  2. Installation direction: All base stations should be installed in accordance with horizontal ceiling mounting with the front facing the floor. The horizontal angle deviation should not exceed 3 degrees. Meanwhile, the installation direction of all BTS should be consistent as far as possible, with the BTS network port as the reference direction to facilitate commissioning and calibration.

  3. Avoid obstacles: The installation location of the base station should avoid obstacles to block interference, such as corners, walls, metal beams and other obstacles that have a greater impact on the base station antenna. There should be no obstacles within 1 meter in front, back, left, right and below the BTS to avoid affecting the positioning effect.

  4. Channel selection: The base station uses 2481 private channel by default, while the sample tag currently uses 2402 Bluetooth channel. The channels of both BTS and tags can be modified within the software. However, it is recommended to use the 2481 private channel to avoid interference by the Bluetooth channel.

AOA Software Operating and Instructions - CCS

Obtain and Activate License

CCS (Core Config Station) software requires Feasycom to activate the license before using;

If the license is not activated, user can enter cle service start command in CLE terminal (Core Location Engine Terminal) to obtain the machine ID;
Or open 127.0.0.1:33333 in Chrome browser to view the machine code, and then send the machine code to Feasycom to get license.
_images/license_1.png

_images/license_2.png

Project Information Configuration

a) Environment Variable Configuration

Open CSS (Core Config Station), after creating a new project, go to Project Info - Environment Variables: The default parameters of the project are large. The following figure shows the configuration parameters that have been verified many times. They can be used directly or adjusted by the users.

_images/aoa_ccs.png

CSS(Core Config Station)

_images/%E7%8E%AF%E5%A2%83%E5%8F%98%E9%87%8F.png

b) Algorithm Information Configuration

In the Project Info - Algorithm Info - Configuration, as shown in the figure below, the parameters in the ellipse area, please adjust them according to the actual situation, users can modify them directly;

_images/%E7%AE%97%E6%B3%95%E4%BF%A1%E6%81%AF%E9%85%8D%E7%BD%AE.png

c) Map Configuration- Load Map

In the Project Info - Map Info - Map Configuration, click Change Map to add the required map, the scale must be consistent.

_images/%E5%9C%B0%E5%9B%BE%E9%85%8D%E7%BD%AE_%E6%9B%B4%E6%8D%A2%E5%9C%B0%E5%9B%BE.png

d) Map Configuration- Map Calibration

After changing the map, user needs to perform Map calibration:

Click Map Adjustment (2 Points) , select the 2 Points, and mark the two selected points in the figure below, then the Map Adjustment window pops up– Actual Length, Enter the actual distance, and check lock the marking length.

_images/%E5%9C%B0%E5%9B%BE%E9%85%8D%E7%BD%AE_%E6%A0%A1%E5%87%86%E5%9C%B0%E5%9B%BE.png _images/%E5%9C%B0%E5%9B%BE%E9%85%8D%E7%BD%AE_%E6%A0%A1%E5%87%86%E5%9C%B0%E5%9B%BE_2.png

As shown in the picture below, move the mouse to the arrow to view the coordinates.

At this time, user can confirm that the map data is correct. The eg.map size is 6m x 6m.

_images/%E5%9C%B0%E5%9B%BE%E9%85%8D%E7%BD%AE_%E6%A0%A1%E5%87%86%E5%9C%B0%E5%9B%BE_3.png

e) Base Station Configuration

In the Base Station Configuration - Planning, choose Product Type & Base station Name. For naming the base station, it’s better to use MAC address of the base station. Fill in the coordinates of the base station (in meters) as appropriate.

_images/%E5%9F%BA%E7%AB%99%E9%85%8D%E7%BD%AE_%E8%A7%84%E5%88%92.png

In the Base Station Configuration - Deployment - Locator MAC. Please write the mac address of the base station. It must be consistent with the actual placement. Otherwise, the beacon position will be inaccurate after operation.

_images/%E5%9F%BA%E7%AB%99%E9%85%8D%E7%BD%AE_%E9%83%A8%E7%BD%B2.png

f) Simulation Test

After all settings are completed, in the Project Info - Map Info - Coverage Estimate, select Open Estimate to view the coverage after placement.

_images/%E4%BB%BF%E7%9C%9F.png

Equipment placement

On the map, each base station will have a point, which is the light on the base station, so the actual placement needs to be based on the actual direction of the map.

Avoid installing in a blocked location.

As shown in the diagram provided, the points on the base station are all facing door D. Therefore, when we stand facing door A, all the lights on the base station are all placed towards left.

_images/%E8%AE%BE%E5%A4%87%E6%91%86%E6%94%BE.png

Equipement List

a) Network Accessed Devices View

In the Device Management - Network Accessed Devices , the base stations and beacons recognized in the LAN could be viewed.

_images/%E5%B7%B2%E5%85%A5%E7%BD%91%E8%AE%BE%E5%A4%87%E5%88%97%E8%A1%A8.png

If there is no data, please select Network--NIC--WLAN, and then right-click to refresh.

_images/%E5%B7%B2%E5%85%A5%E7%BD%91%E8%AE%BE%E5%A4%87%E5%88%97%E8%A1%A8_%E7%BD%91%E5%8D%A1.png

b) Device Scanning Channel Configuration

The default channel is 2481. User can right-click the base station and beacon to change the channel used, and configure it to Bluetooth channel 2402.

Operate AOA

a) Start the project

Enter 127.0.0.1:33333 in the browser, go to Positioning Engine - Settings - Services pages, Select the saved .cpa file, then click Start.

_images/%E5%90%AF%E5%8A%A8AOA.png

b) Real-time track view

After startup, click on real-time positioning to view the trajectory. Click on the beacon or base station to view the data of the beacon or base station.

_images/%E8%BD%A8%E8%BF%B9.png

RTLS Upper Computer Software Pre-Use Instructions - Feasycom RTLS

Pre-use Instructions of The Upper Computer

Before using the RTLS upper computer, please complete the above-mentioned AOA environment setup. After that, user can use the AOA RTLS upper computer.

_images/%E5%90%AF%E5%8A%A8AoA_ccs.png

The host computer interface displays

The default display in the RTLS Upper Computer software interface is: Base Station List & Label List . The right sidebar is Parameter Setting toolbar, including system configuration, base map layout, and grid settings. The center of the interface is the actual site map and positioning point display.

_images/RTLS_default_display.png

Function Introduction

a) Basemap Settings

In the Parameter Settings - Base Layout, click Open to open the site layout image. Adjust the image zoom and offset according to the image pixels, so that the positioning points are accurately displayed on the map. If there is no basemap, user can turn on the fence mode.

_images/RTLS_%E5%BA%95%E5%9B%BE%E5%B8%83%E7%BD%AE.png _images/RTLS_%E5%BA%95%E5%9B%BE%E5%B8%83%E7%BD%AE_2.png
After the configuration is completed, the positioning interface can be displayed separately.
In the Parameter Settings - System Configuration, please uncheck Display Label List & Display Base Station Table, then close the Parameter Settings bar.
To re-open it, please click Display - Parameter Setting & Configuration at the upper left corner of the interface.
_images/RTLS_%E5%AE%9A%E4%BD%8D%E7%95%8C%E9%9D%A2_display.png

b) Positioning

In the Parameter Settings - System Configuration function column, fill in the IPv4 address of the computer with the AoA software (CSS) installed in the Gateway–IP section, and then click Modify.

_images/RTLS_%E5%AE%9A%E4%BD%8D_CCS_IP.png

Depending on the ip address segment 0 or 100 of the computer used, select the URL to fill in the gateway IP of RTLS. As shown in the image:

_images/RTLS_%E5%AE%9A%E4%BD%8D_gateway_IP.png

c) Trajectory

The RTLS upper computer can open the trajectory and modify the trajectory length;

In the Parameter Settings - System Configuration function column, check Display Track and fill in the numbers to set the trajectory length, upper limit is 500. As shown in the figure:

_images/RTLS_%E6%98%BE%E7%A4%BA%E6%A0%87%E7%AD%BE%E8%BD%A8%E8%BF%B9_%E8%BD%A8%E8%BF%B9%E9%95%BF%E5%BA%A6%E9%85%8D%E7%BD%AE.png

d) Anti-shack

RTLS upper computer supports anti-shake adjustment parameters (default 0.05m),

In Parameter Setting - System Configuration - Anti-Shake Threshold item, user can adjust the flutter of the positioning point. The larger the value, the smaller the fluctuation.

_images/RTLS_%E9%98%B2%E6%8A%96%E9%85%8D%E7%BD%AE.png

CLE DashBoard Operating Instructions

CLE DashBoard Access

After CLE starts the engine algorithm, user can use the local Chrome browser to open http://localhost:44444 to access the CLE Dashboard. Similarly, user can use other PCs in the LAN to open the CLE Dashboard.

For example, if the IP address of the server/PC that starts the CLE Engine is 192.168.0.254, user can use Chrome to open http://192.168.0.254:44444 on other PCs in the LAN. In this way, it’s easy to access the CLE Dashboard in the LAN.

_images/open_cle_dashboard.png

Adjuste Tag Display Size

After entering the CLE Dashboard interface, in the upper right corner of the page:

- Select the corresponding map
- Drag the slider to adjust the tag display size
_images/tag_size_adjust.png

Tag/gateway display

After entering the CLE Dashboard interface, on the left side of the page: click the small eye icon to switch the corresponding tag/gateway display status.

_images/cle_dashboard_tag_gateway_status.png

FAQs

Q: Enter http://localhost:44444/ and the browser shows that this site cannot be accessed

Please check whether the cle algorithm engine starts the positioning service. cle service start xxx.cpa
Please check whether the cle service starts properly.
Pic A: Normal Start-up
_images/faq_open_cledashboard_OK.png
Figure C: The gateways cannot be found. Please open CCS to check whether the gateway is scanned and whether the gateway has filled in the corresponding mac address.
_images/faq_open_cledashboard_no.png

Q: CLE Dashboard page Map cannot be displayed

Please use the Chrome browser, if user uses other browsers, it will cause exceptions.

Please check the Chrome version. If the version is too low, the display may be abnormal. Please check for updates. If cannot update, please download and install the new version again: https://www.google.cn/chrome/

Q: CLE Dashboard page–No beacon/The beacon has not been founded

If the map imported in CCS is a 3D map in dae/zip format, please check whether the 3D map contains height information during modeling. If it does, please flatten the z-axis or delete the height.

Please check whether the beacon is turned on. Press it once to see if the indicator light is on. If the light is on, it means it is turned on. If it is not turned on, please press and hold to turn it on.

Please stop the cle engine service: cle service stop, use CCS to open and scan the beacon, then check whether the tag is online and whether the channel is the same as the gateway. If the channel is different, please change the tag to the same channel as the gateway.

Appendix

PDF Download

PDF Download